Conception et études électriques : des solutions sur mesure avec GOTHOM ELECTRICITY

Étude et conception électricité industrielle et tertiaire à Mulhouse


GOTHOM ELECTRICITY à Mulhouse réalise l’étude, la conception et l’édition des documents nécessaires à la réalisation de vos projets.

Nous effectuons :

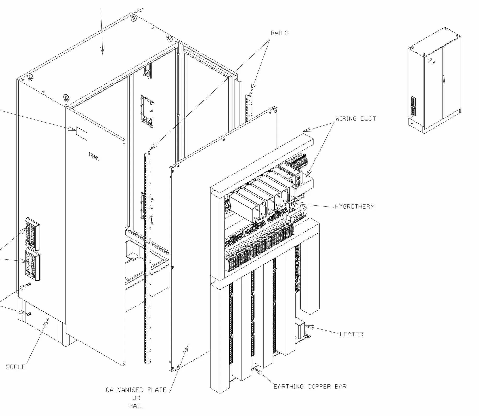
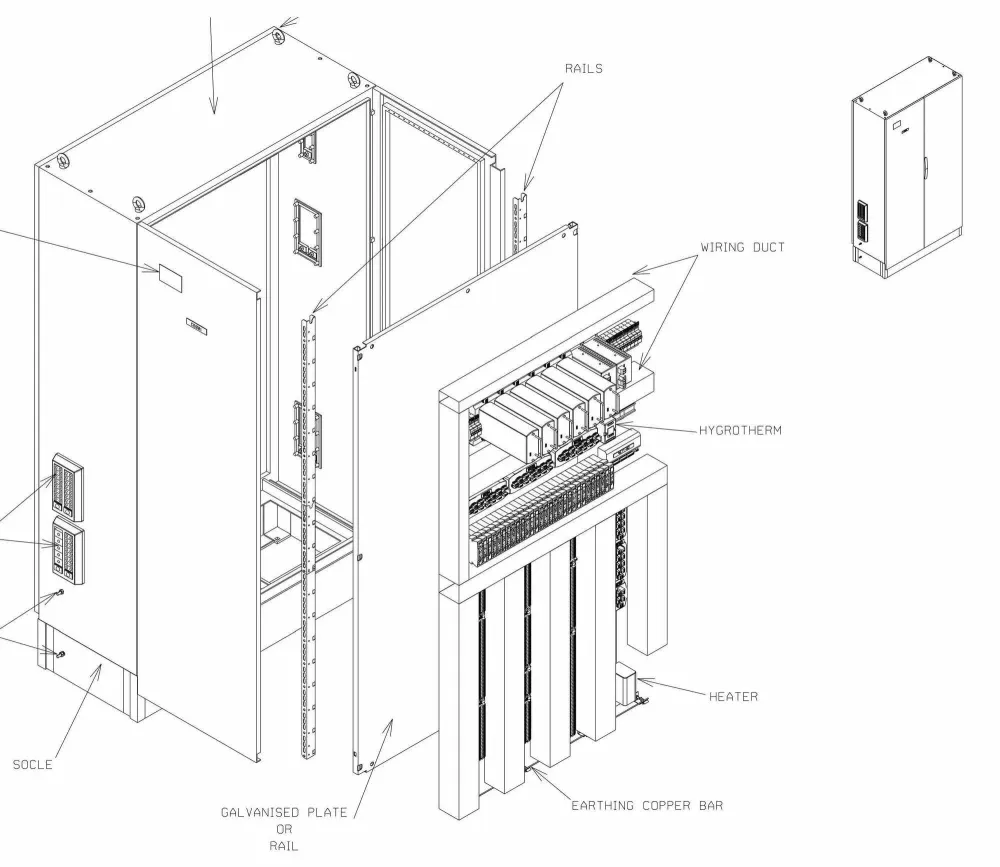
  • L’étude de vos projets industriels (CAO/DAO) et tertiaires (XLpro, Hagercad),
  • La conception 3D,
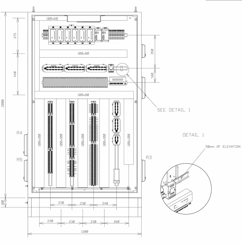
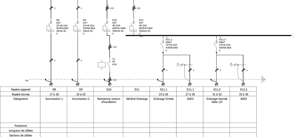
  • La rédaction de plans de montage et de schémas électriques,
  • Le calcul de câbles (CANECO),
  • L’étude d’éclairage (DIALUX).

GOTHOM ELECTRICITY propose également :

  • L’étude et la conception de vos projets industriels et tertiaires,
  • La rédaction de listes de matériels, de schémas électriques, de plans de montage, de notes de calcul de câbles et d’études d’éclairage.

 

motif haut
motif bas

Des solutions d’étude et conception électrique adaptées à vos besoins

Contactez-nous pour vos projets d’électricité industrielle à Mulhouse


Besoin d’un électricien industriel et tertiaire à Mulhouse ? Gothom Electricity vous accompagne dans vos projets d’étude et conception électrique.

Contactez-nous dès maintenant pour des solutions sur mesure, fiables et conformes à vos exigences. Devis gratuit et intervention rapide !

Adresse

17 Rue des Pyrénées 68350 Brunstatt-Didenheim

Téléphone

06 71 83 98 61

Gothom Electricity

17 Rue des Pyrénées 68350, Brunstatt-Didenheim